Home Plan Details
See neighborhoods for pricing detailsHanson Builders’ Belleville is a versatile home plan with great potential for customization. Optional wood floors, ceiling beams, and cabinets speak to your preferences. Relax in the upstairs loft or convert it to a fourth bedroom with a private bath.
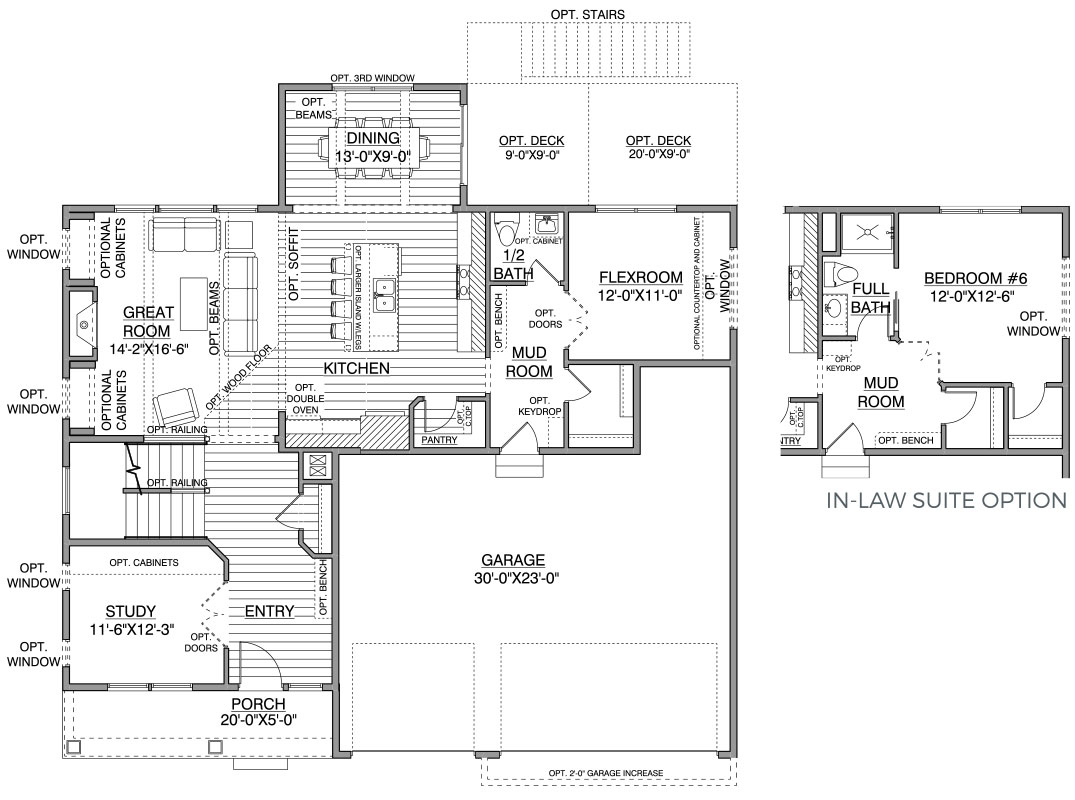
- L-shaped open floor plan with kitchen anchoring the Great Room and adjacent Dining overlooking the rear yard, both with optional beamed ceilings
- Study/Home Office off front entry for receiving clients or deliveries
- Walk-In Pantry between Mud Room and Kitchen for handy access
- Rear-oriented Flex Room can be upgraded to a main floor In-Law Suite for visiting parents or guests
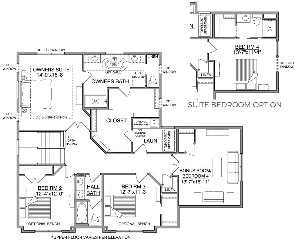
- Owners Suite offers raised ceiling option
- Owners Bath features optional vaulted ceiling, makeup counter and separate tub and shower
- Laundry is accessed from the center hallway as well as the Owners closet to save steps and offer egress for early morning meetings or flights
- Hall Jack & Jill bath serves additional 3 bedrooms
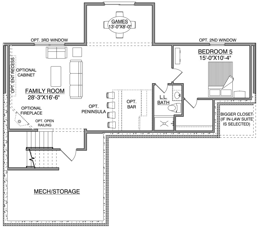
- Family and Game rooms with wet bar, fireplace and media wall plus 5th Bedroom and ¾ Bath
Neighborhoods with Floorplan Option
Belleville Floorplan



Homes Designed for the Art of Living
At Hanson Builders, we build homes designed for you. In addition to fully custom and semi-custom build packages, we offer new construction, move-in ready homes to fit your needs, lifestyle, and budget. Our passion is designing and building homes where families will enjoy many years of happiness, and we carry that passion into perfecting even the smallest details. Every Hanson home is a labor of love.
VIEW AVAILABLE HOMES
Custom Homes That Inspire
We’ve been designing and building award-winning custom homes in Minnesota for more than 40 years. Whatever you envision for your new home, we have the experience and expertise to bring it to life. Browse some of our recent projects to see for yourself.










