Home Plan Details
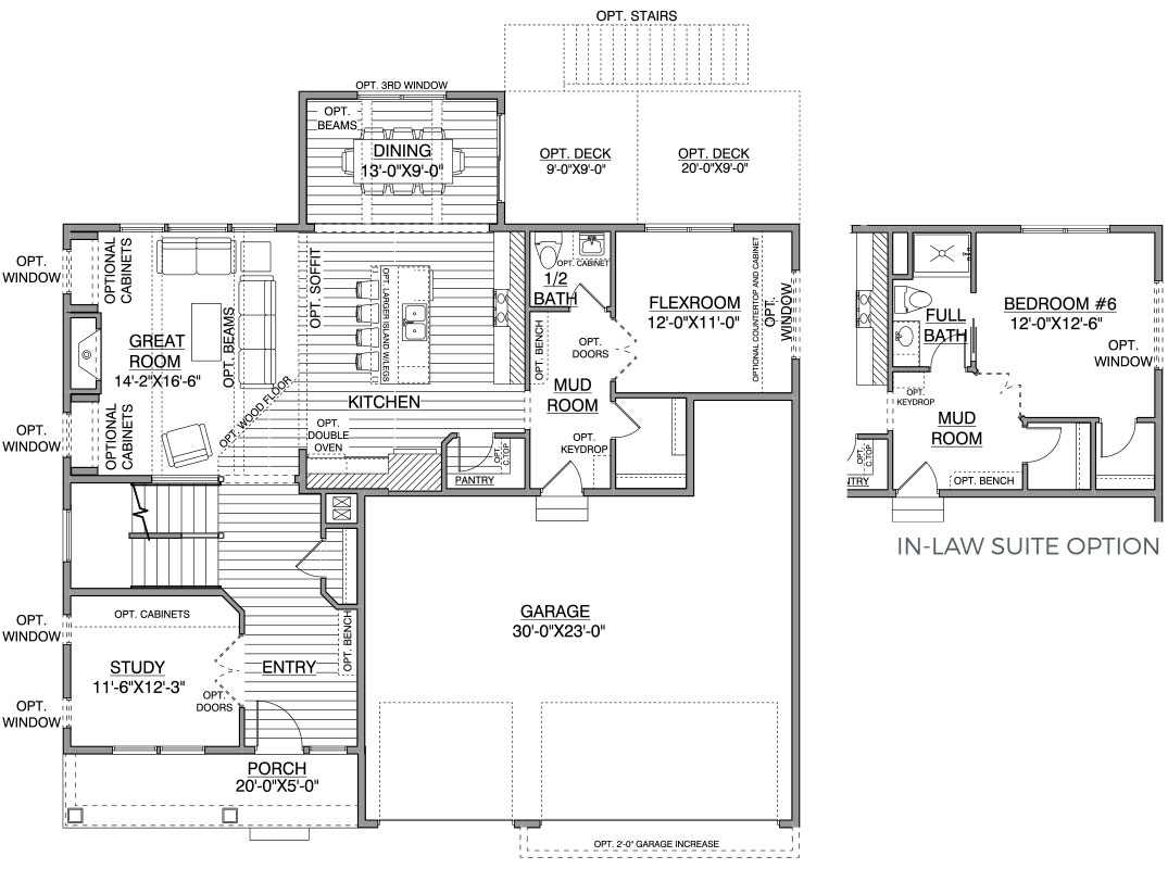
See neighborhoods for pricing detailsThe Bonneville is a sophisticated home plan designed for modern families. The versatile flex room can be replaced with an extra bedroom, and the owner’s bath offers several options for customization and expansion. Raised ceilings and dropped soffits add drama and volume.
- L-shaped open floor plan with kitchen centered between the Great Room and rear-facing Dining each offering optional beamed ceilings
- Study/Home Office off front entry for receiving clients or deliveries
- Walk-In Pantry between Mud Room and Kitchen for handy access
- Rear-oriented Flex Room can be upgraded to a main floor In-Law Suite for visiting parents or guests
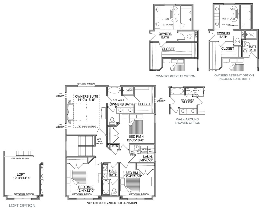
- Owners Suite offers raised ceiling option
- Owners Bath features optional vaulted ceiling and walk-around shower
- Owners Bath can be upgraded to a lavish vaulted ceilinged room addition above the Dining, with free-standing tub and oversized shower for two
- Laundry offers window for natural light and central location to between all four bedrooms
- Hall Jack & Jill bath serves additional 3 bedrooms
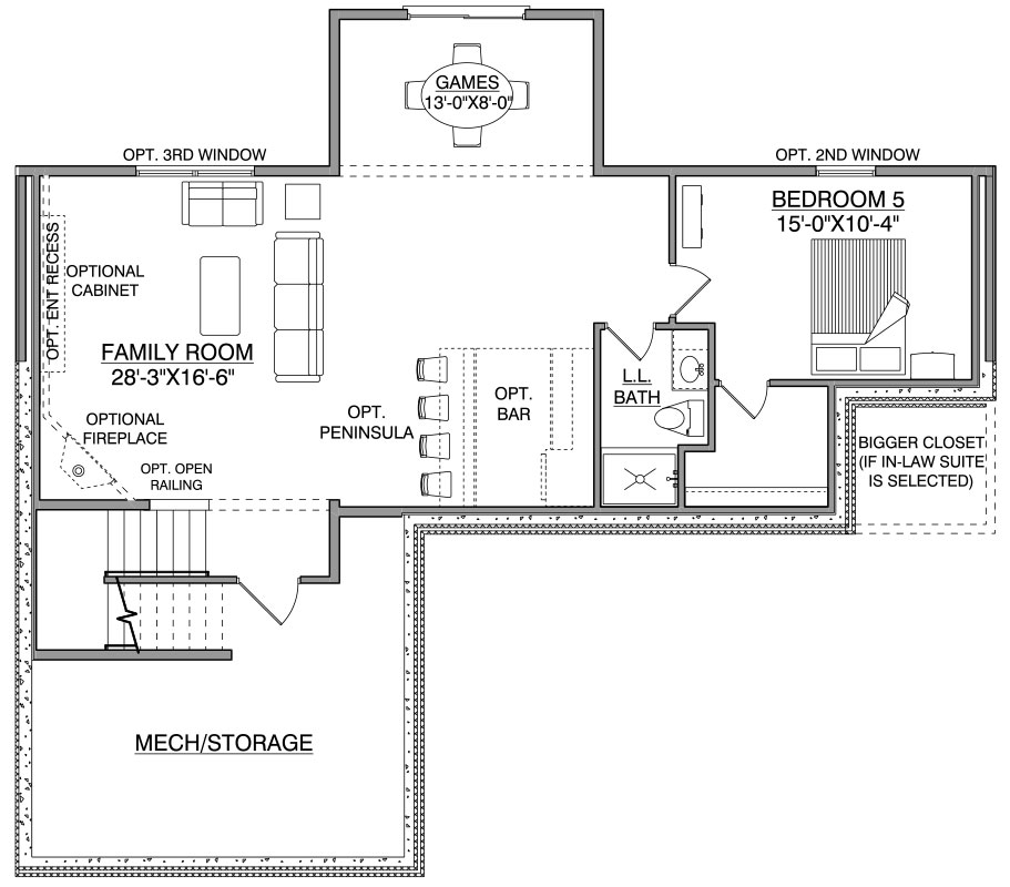
- Family and Game rooms with wet bar, fireplace and media wall plus 5th Bedroom and ¾ Bath
Neighborhoods with Floorplan Option
Bonneville Floorplan



Homes Designed for the Art of Living
At Hanson Builders, we build homes designed for you. In addition to fully custom and semi-custom build packages, we offer new construction, move-in ready homes to fit your needs, lifestyle, and budget. Our passion is designing and building homes where families will enjoy many years of happiness, and we carry that passion into perfecting even the smallest details. Every Hanson home is a labor of love.
VIEW AVAILABLE HOMES
Custom Homes That Inspire
We’ve been designing and building award-winning custom homes in Minnesota for more than 40 years. Whatever you envision for your new home, we have the experience and expertise to bring it to life. Browse some of our recent projects to see for yourself.






