Home Plan Details
See neighborhoods for pricing detailsThe Hillcrest Sport is one of Hanson Builder’s most popular home designs, loved for its stunning interior and modern feel. The distinguished great room commonly features a stone fireplace wall, and an indoor sport court offers year-round recreation.
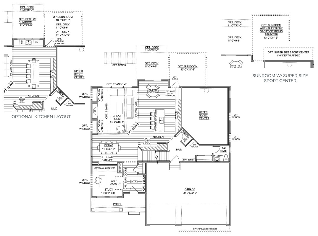
- Central kitchen overlooks Great Room with optional decorative beams and dropped soffit as well as large and small dining areas for occasional and daily use
- Study/Home Office off front entry for receiving clients or deliveries
- Optional rear-oriented Sunroom for family getaway relaxation
- Large Pantry between garage for grocery unloading and kitchen for using
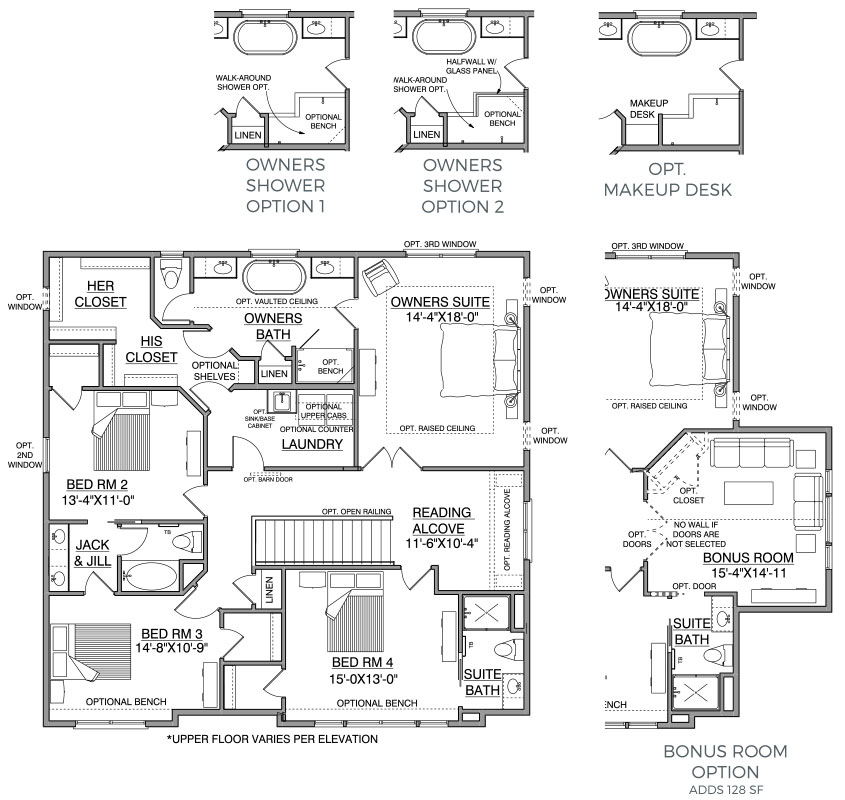
- Owners Suite offers optional dramatic raised ceiling
- Owners Bath features optional vaulted ceiling, makeup counter and adjacent dual closets
- Laundry is accessed from the center hallway as well as one of the Owners closets
- Two bedrooms share a Jack & Jill bath with private shower/toilet room and 4th bedroom has its own private bath and walk-in closet
- Optional Bonus Room with vaulted ceiling and double doors
- Indoor 2-story Sport Center open to ample exercise area and ball storage closet
- Family and Game rooms with wet bar, fireplace and media wall plus an optional 5th bedroom and ¾ Bath.
Neighborhoods with Floorplan Option
Hillcrest Sport Floorplan



Homes Designed for the Art of Living
At Hanson Builders, we build homes designed for you. In addition to fully custom and semi-custom build packages, we offer new construction, move-in ready homes to fit your needs, lifestyle, and budget. Our passion is designing and building homes where families will enjoy many years of happiness, and we carry that passion into perfecting even the smallest details. Every Hanson home is a labor of love.
VIEW AVAILABLE HOMES
Custom Homes That Inspire
We’ve been designing and building award-winning custom homes in Minnesota for more than 40 years. Whatever you envision for your new home, we have the experience and expertise to bring it to life. Browse some of our recent projects to see for yourself.












