Home Plan Details
See neighborhoods for pricing detailsThe Rachel by Hanson Builders offers a comfortable layout, utilizing every square foot to create a cozy and relaxing atmosphere. Vaulted ceilings and built-in shelves show off this home’s elegance, while a sunroom with an optional vaulted ceiling and beams offers an extra space to relax.
- Spacious Entry greets arriving guests with overlook and windows to the Lower Level stairwell
- Central Great Room rambler plan with abundant windows for natural light and optional raised ceiling, beams and cabinets flanking the center fireplace
- Kitchen incorporates adjacent Prep Pantry with counters for coffee and appliances
- Rear-facing Dining takes advantage of views and features a nearby hutch/bar for serving
- Sunroom options a vaulted ceiling and beams
- Study/Home Office/Bedroom 2 is located off the front entry and has handy hall access to a¾ bath
- Main floor Owners Suite is privately situated down a corridor from the kitchen and can feature an optional raised ceiling and windows to the rear views
- Owners Bath features both freestanding tub and separate shower, with split vanities, one with a makeup area
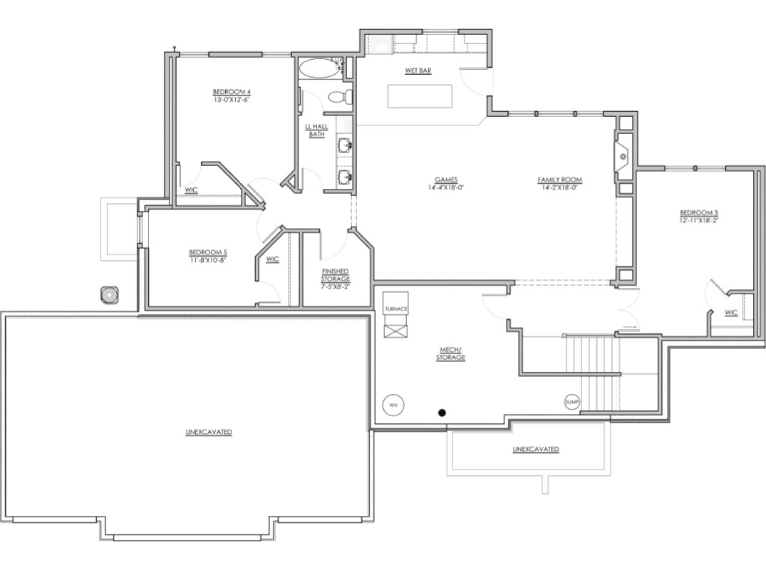
- Finished Family and Game rooms with wet bar and free-standing bar table, fireplace and media wall plus Storage Room and 3 additional Bedrooms and a hall Jack and Jill Bath
Neighborhoods with Floorplan Option
- Hollydale, Plymouth, MN
- Weston Woods, Medina, MN
- Elm Creek Vista, Maple Grove, MN
- The Ridge at Elm Creek, Maple Grove, MN
- Brindle Path, Medina, MN
- Woodland Hills, Corcoran, MN
- Elwell Farms, Ham Lake, MN
- Koch Farm Sanctuary, Independence, MN
- Evanswood, Maple Grove, MN
- Build on Your Lot, Twin Cities Area, MN
Rachel Floorplan


Homes Designed for the Art of Living
At Hanson Builders, we build homes designed for you. In addition to fully custom and semi-custom build packages, we offer new construction, move-in ready homes to fit your needs, lifestyle, and budget. Our passion is designing and building homes where families will enjoy many years of happiness, and we carry that passion into perfecting even the smallest details. Every Hanson home is a labor of love.
VIEW AVAILABLE HOMES








