Home Plan Details
See neighborhoods for pricing detailsHanson Builder’s Remington is a luxurious and welcoming rambler plan. The fireplace, custom cabinets, and raised ceiling draw eyes and inspire a comfortable atmosphere. The owner’s suite emphasizes convenience with a walk-in closet and pocket door to the laundry area.
- Central Great Room rambler plan with abundant windows for natural light and optional raised ceiling and cabinets flanking the center fireplace
- Kitchen incorporates corner walk-in Pantry with optional counter for coffee and appliances
- Dining opens to optional rear deck via sliding glass door and offers optional built-in buffet cabinet
- Study/Home Office off front entry can serve as Bedroom 2 with optional private pocket door-access to full bath
- Main floor Owners Suite is privately situated behind the fireplace wall and offers raised ceiling option
- Owners Bath features both tub and separate shower, with optional free-standing tub between split vanities and luxurious shower room
- Owners walk-in closet offers an optional step-saving connection pocket door to the laundry area
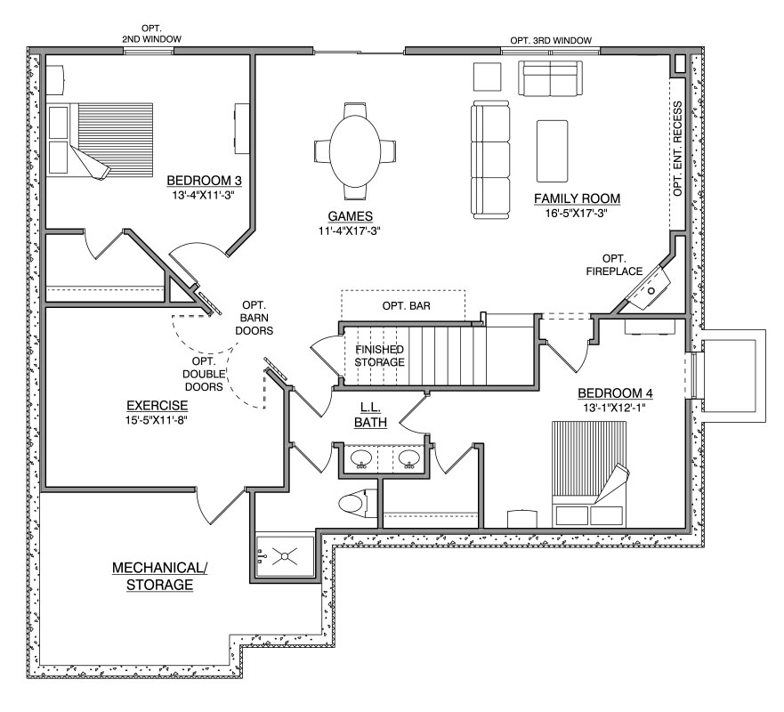
- Finished Family and Game rooms with optional wet bar, fireplace and media wall plus Exercise Room with optional barn doors plus 2 additional Bedrooms and ¾ Bath
Neighborhoods with Floorplan Option
Remington Floorplan


Homes Designed for the Art of Living
At Hanson Builders, we build homes designed for you. In addition to fully custom and semi-custom build packages, we offer new construction, move-in ready homes to fit your needs, lifestyle, and budget. Our passion is designing and building homes where families will enjoy many years of happiness, and we carry that passion into perfecting even the smallest details. Every Hanson home is a labor of love.
VIEW AVAILABLE HOMES
Custom Homes That Inspire
We’ve been designing and building award-winning custom homes in Minnesota for more than 40 years. Whatever you envision for your new home, we have the experience and expertise to bring it to life. Browse some of our recent projects to see for yourself.








