Home Plan Details
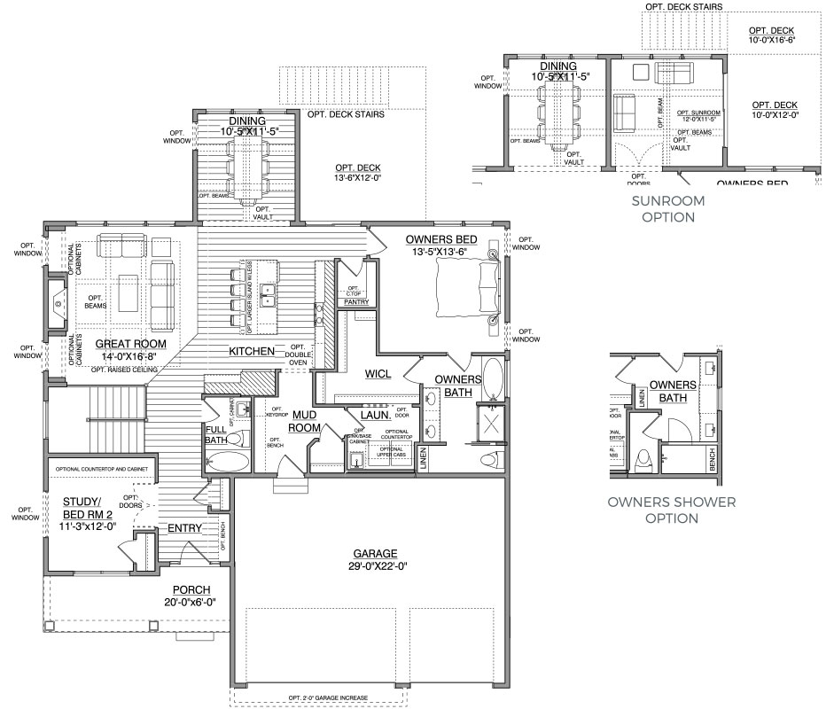
See neighborhoods for pricing detailsThe Richmond is a modern home plan designed for convenience and comfort. The owner’s suite has easy access to the laundry room through a spacious walk-in closet. Optional beams and a raised ceiling add drama and character to the corner great room.
- Corner Great Room rambler plan with abundant windows for natural light and optional raised ceiling and cabinets flanking the center fireplace
- Kitchen incorporates walk-in Pantry with optional counter for coffee and appliances
- 3-sided rear-oriented Dining can accommodate an optional vaulted ceiling with beams for volume and drama
- Study/Home Office off front entry can serve as Bedroom 2 with optional double doors
- Main floor Owners Suite is privately situated down a corridor from the kitchen
- Owners Bath features both tub and separate shower, with optional super-sized vanities and luxurious shower room
- Owners walk-in closet offers an optional step-saving connection pocket door to the laundry area
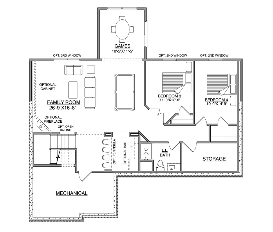
- Finished Family and Game rooms with optional walk-behind wet bar, fireplace and media wall plus Storage Room and 2 additional Bedrooms and ¾ Bath
Neighborhoods with Floorplan Option
Richmond Floorplan


Homes Designed for the Art of Living
At Hanson Builders, we build homes designed for you. In addition to fully custom and semi-custom build packages, we offer new construction, move-in ready homes to fit your needs, lifestyle, and budget. Our passion is designing and building homes where families will enjoy many years of happiness, and we carry that passion into perfecting even the smallest details. Every Hanson home is a labor of love.
VIEW AVAILABLE HOMES
Custom Homes That Inspire
We’ve been designing and building award-winning custom homes in Minnesota for more than 40 years. Whatever you envision for your new home, we have the experience and expertise to bring it to life. Browse some of our recent projects to see for yourself.








