Home Plan Details
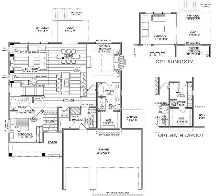
See neighborhoods for pricing detailsThe Rockford by Hanson Builders is a beautiful rambler plan with eye-catching views throughout the home. Custom built-ins, abundant windows, a fireplace, and optional raised ceilings showcase this home’s luxurious character.
- Corner Great Room rambler plan with abundant windows for natural light and optional raised ceiling and cabinets flanking the center fireplace
- Kitchen incorporates walk-in Pantry
- Rear-oriented Dining features sliding door access to the deck or half-wall and opening to optional Sunroom
- Study/Home Office off front entry can serve as Bedroom 2 with optional double doors and private pocket door access to Bath
- Main floor Owners Suite is privately situated down a corridor from the kitchen and offers optional raised ceiling and additional windows
- Owners Bath features both tub and separate shower, with optional walk-around shower with upper glass
- The 3-car garage has a storage bump out option for a shop or additional storage
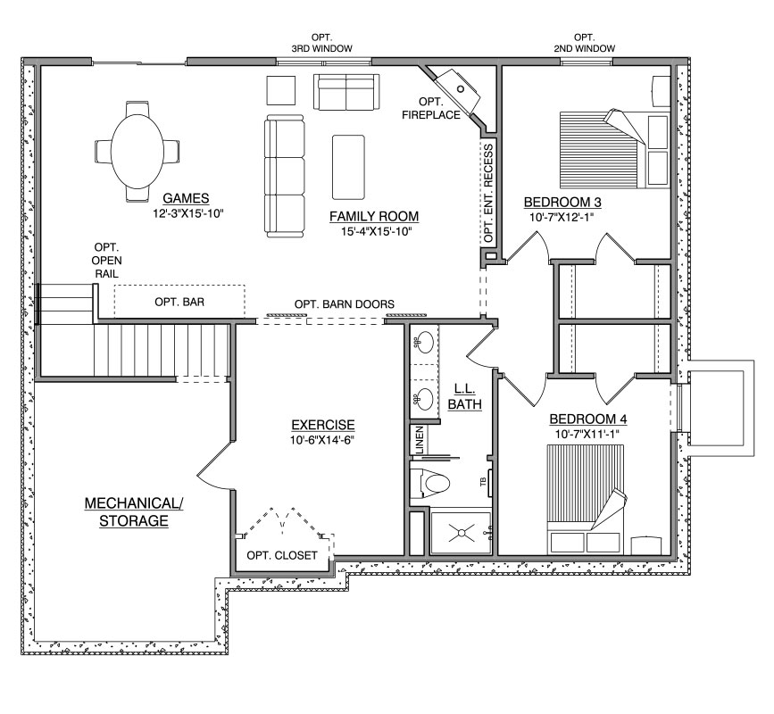
- Finished Family and Game rooms with optional wet bar, fireplace and media wall plus Exercise Room, 2 additional Bedrooms and ¾ Bath
Neighborhoods with Floorplan Option
Rockford Floorplan


Homes Designed for the Art of Living
At Hanson Builders, we build homes designed for you. In addition to fully custom and semi-custom build packages, we offer new construction, move-in ready homes to fit your needs, lifestyle, and budget. Our passion is designing and building homes where families will enjoy many years of happiness, and we carry that passion into perfecting even the smallest details. Every Hanson home is a labor of love.
VIEW AVAILABLE HOMES
Custom Homes That Inspire
We’ve been designing and building award-winning custom homes in Minnesota for more than 40 years. Whatever you envision for your new home, we have the experience and expertise to bring it to life. Browse some of our recent projects to see for yourself.










