Home Plan Details
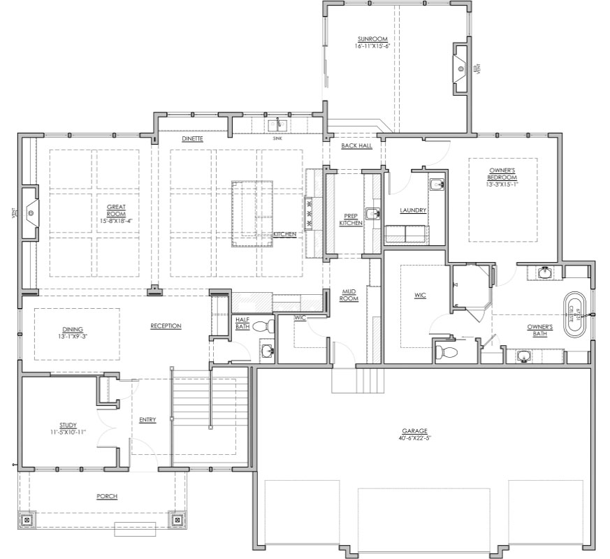
See neighborhoods for pricing detailsThe Rockwell by Hanson Builders offers a main floor owners suite, a sunroom with opt. vaulted ceiling & beams, and a 70 Foot Width with 4-Car Garage
- Entry reception area offers a bar with beverage fridge for arriving guests
- Corner Great Room rambler plan with abundant windows for natural light and optional raised ceiling, beams and cabinets flanking the center fireplace
- Kitchen incorporates walk-through Prep Pantry with counters for coffee and appliances
- Central Dining can accommodate an optional raised ceiling with beams plus rear-oriented Dinette incorporates a built-in bench
- Sunroom options a vaulted ceiling and beams
- Study/Home Office off front entry features double double doors
- Main floor Owners Suite is privately situated down a corridor from the kitchen and can feature an optional raised ceiling and windows to the rear views
- Owners Bath features both freestanding tub and separate shower, with split vanities, one with a makeup area
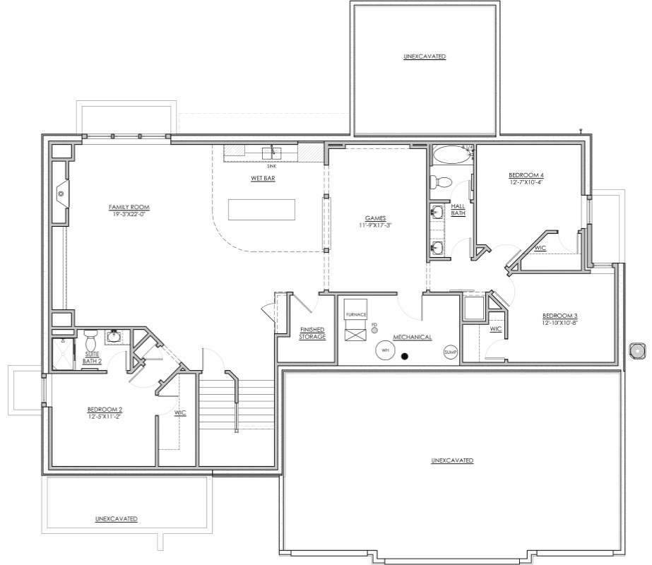
- Finished Family and Game rooms with wet bar and free-standing bar table, fireplace and media wall plus Storage Room and 3 additional Bedrooms and two Bathrooms, one in the Bedroom 2 Suite
Neighborhoods with Floorplan Option
- Hollydale, Plymouth, MN
- Weston Woods, Medina, MN
- Elm Creek Vista, Maple Grove, MN
- The Ridge at Elm Creek, Maple Grove, MN
- Brindle Path, Medina, MN
- Woodland Hills, Corcoran, MN
- Elwell Farms, Ham Lake, MN
- Evanswood, Maple Grove, MN
- Build on Your Lot, Twin Cities Area, MN
- Koch Farm Sanctuary, Independence, MN
Rockwell Floorplan


Homes Designed for the Art of Living
At Hanson Builders, we build homes designed for you. In addition to fully custom and semi-custom build packages, we offer new construction, move-in ready homes to fit your needs, lifestyle, and budget. Our passion is designing and building homes where families will enjoy many years of happiness, and we carry that passion into perfecting even the smallest details. Every Hanson home is a labor of love.
VIEW AVAILABLE HOMES
Custom Homes That Inspire
We’ve been designing and building award-winning custom homes in Minnesota for more than 40 years. Whatever you envision for your new home, we have the experience and expertise to bring it to life. Browse some of our recent projects to see for yourself.





