Home Plan Details
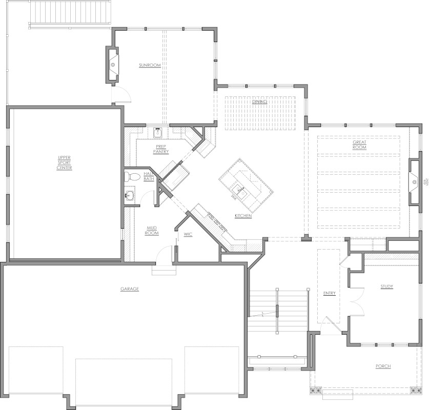
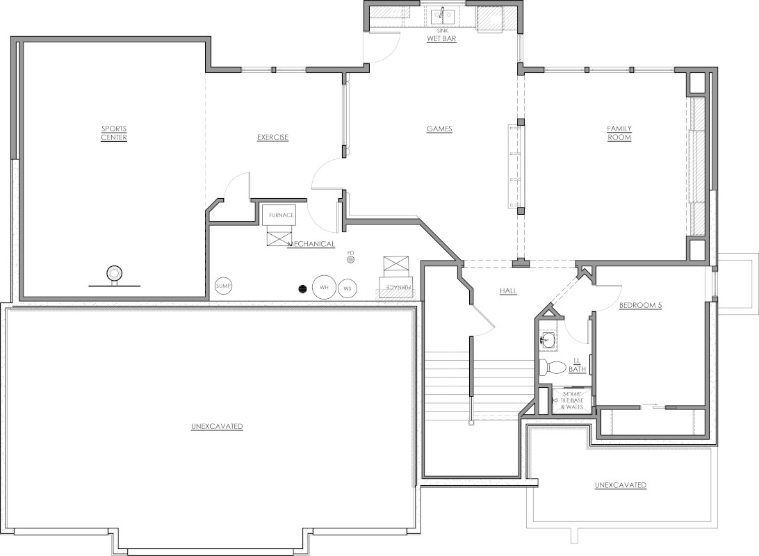
See neighborhoods for pricing detailsHanson Builders’ new Sherwood floorplan offers incredible attention to detail and a stunning interior with a modern feel. This home features a prominent elevated front exterior with numerous windows to bring in natural light. The main level offers a great room with ceiling beams, custom designed kitchen with large center island. The upper level features four bedrooms including the owner’s suite with a spa-like bathroom. The walk-out lower level offers a large family room and sport court.
- Elegant kitchen featuring double ovens, cooktop, and spacious island
- Walk-in pantry with plenty of space
- Great room fireplace and optional recessed walls with built-in shelves and cabinets
- Owner’s suite with tray ceiling and wall of windows
- Owner’s bath with a freestanding soaking tub and walk-in shower
- Three spacious bedrooms in addition to owner’s suite
- Conveniently located laundry room
Large family room with fireplace, wet bar, built-in cabinets, and game area
Neighborhoods with Floorplan Option
- Elm Creek Vista, Maple Grove, MN
- The Ridge at Elm Creek, Maple Grove, MN
- Brindle Path, Medina, MN
- Woodland Hills, Corcoran, MN
- Elwell Farms, Ham Lake, MN
- Evanswood, Maple Grove, MN
- Koch Farm Sanctuary, Independence, MN
- Hollydale, Plymouth, MN
- Build on Your Lot, Twin Cities Area, MN
- Weston Woods, Medina, MN
Sherwood Custom Floorplan



Homes Designed for the Art of Living
At Hanson Builders, we build homes designed for you. In addition to fully custom and semi-custom build packages, we offer new construction, move-in ready homes to fit your needs, lifestyle, and budget. Our passion is designing and building homes where families will enjoy many years of happiness, and we carry that passion into perfecting even the smallest details. Every Hanson home is a labor of love.
VIEW AVAILABLE HOMES


















