Home Plan Details
See neighborhoods for pricing detailsThe Superior Sport promotes healthy living with space for recreation, relaxation, and entertainment. Large windows flood the main level great room with natural light, and the lower level offers a fireplace, wet bar, and indoor sport center.
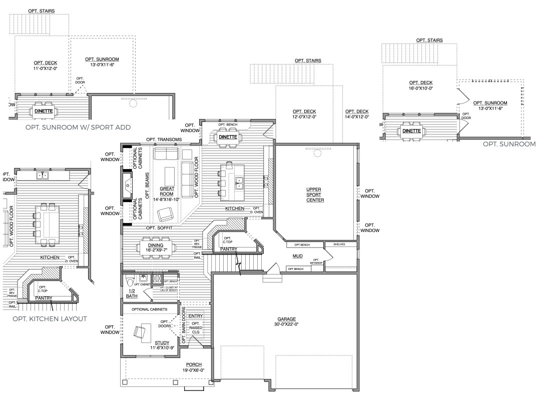
- Central kitchen overlooks Great Room with optional decorative beams and dropped soffit as well as larger and smaller dining areas for special occasion and daily use
- Study/Home Office off front entry for receiving clients or deliveries
- Optional rear-oriented Sunroom for family getaway relaxation
- Large Pantry between garage for grocery unloading and kitchen
- Owners Suite offers optional dramatic raised ceiling
- Owners Bath features optional vaulted ceiling, makeup counter and walk-around shower in addition to free-standing tub
- Laundry is accessed from the center hallway as well as the Owners closets through optional pocket door
- Two bedrooms share a Jack & Jill bath with private shower/toilet room and 4th bedroom has its own private bath and walk-in closet
- Optional Bonus Room with double doors, stepping down, adding additional ceiling height
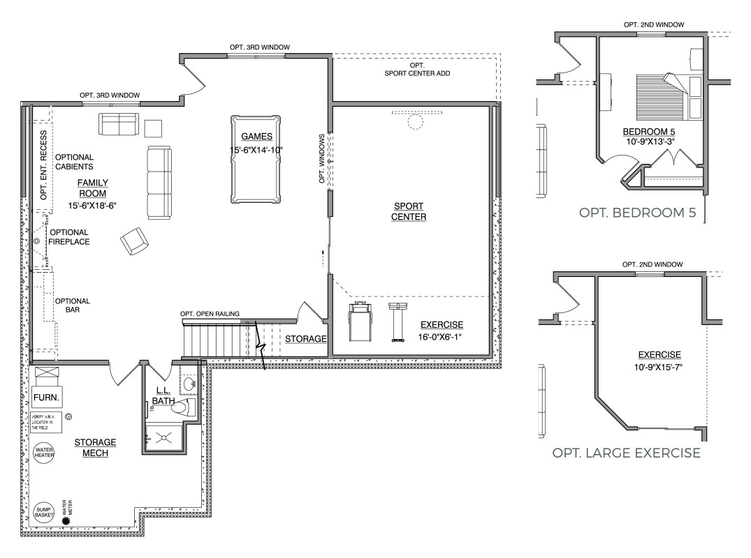
- Indoor 2-story Sport Center open to ample exercise area and nearby ball storage closet
- Family and Game rooms with wet bar, fireplace and media wall plus 5th Bedroom or additional Exercise Room and ¾ Bath
Neighborhoods with Floorplan Option
Superior Sport Floorplan



Homes Designed for the Art of Living
At Hanson Builders, we build homes designed for you. In addition to fully custom and semi-custom build packages, we offer new construction, move-in ready homes to fit your needs, lifestyle, and budget. Our passion is designing and building homes where families will enjoy many years of happiness, and we carry that passion into perfecting even the smallest details. Every Hanson home is a labor of love.
VIEW AVAILABLE HOMES
Custom Homes That Inspire
We’ve been designing and building award-winning custom homes in Minnesota for more than 40 years. Whatever you envision for your new home, we have the experience and expertise to bring it to life. Browse some of our recent projects to see for yourself.










