Home Plan Details
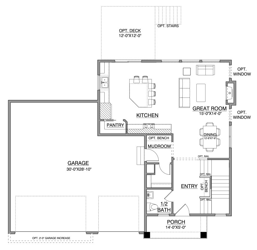
See neighborhoods for pricing detailsThe Timothy is designed for practical living with a luxurious feel. The oversized kitchen island serves as a focal point for gathering, while the eyes of owners and guests alike are drawn to the elegant winding staircase.
- Corner kitchen overlooks Great Room, nearby Dining and the rear views through sliding glass door to rear deck or patio
- Winding staircase creates entry impact for arriving guests
- Corner walk-in Pantry in Kitchen for handy use and hiding the mess
- Oversized island for everyday family dining in addition to separate Dining Room adjacent to the Great Room with a fireplace
- Owners Suite offers optional dramatic raised ceiling and additional window options
- Owners Bath features oversized shower and double vanities flanking a window to the rear for light and views
- Laundry has exterior window and optional folding counter and upper cabinets for linen storage
- Two bedrooms and open loft/bedroom 4 share a hall Jack & Jill bath with private shower/toilet room
- Optional Lower Level finish includes Family and Game rooms with wet bar, fireplace and media wall plus additional Bedroom and ¾ Bath
Neighborhoods with Floorplan Option
Timothy Floorplan



Homes Designed for the Art of Living
At Hanson Builders, we build homes designed for you. In addition to fully custom and semi-custom build packages, we offer new construction, move-in ready homes to fit your needs, lifestyle, and budget. Our passion is designing and building homes where families will enjoy many years of happiness, and we carry that passion into perfecting even the smallest details. Every Hanson home is a labor of love.
VIEW AVAILABLE HOMES
Custom Homes That Inspire
We’ve been designing and building award-winning custom homes in Minnesota for more than 40 years. Whatever you envision for your new home, we have the experience and expertise to bring it to life. Browse some of our recent projects to see for yourself.






