Home Plan Details
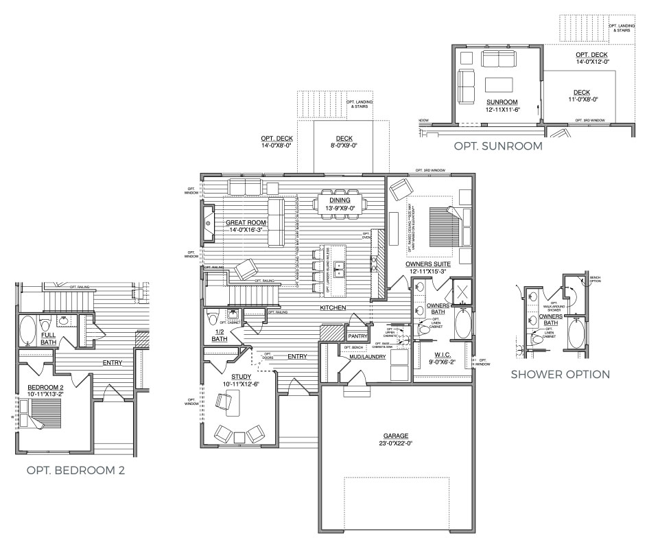
See neighborhoods for pricing detailsThe Vail 2 is a lovely villa that exudes grace and style. The kitchen boasts double ovens and a spacious center island overlooking the dining area and great room, which offers a fireplace and optional tray ceiling.
- Corner Great Room rambler plan with abundant windows for natural light and optional raised ceiling and transom windows flanking the center fireplace
- Kitchen incorporates corner Pantry and has views of the rear yard through the sliding glass door of the adjacent Dining
- Optional rear 3-sided Sunroom situated beyond Dining with sliding glass door deck access
- Study/Home Office off front entry can serve as Bedroom 2 with optional tub/shower bath option
- Main floor Owners Suite is privately situated down a corridor from the kitchen
- Owners Bath features both tub and separate shower, with optional walk-around shower upgrade
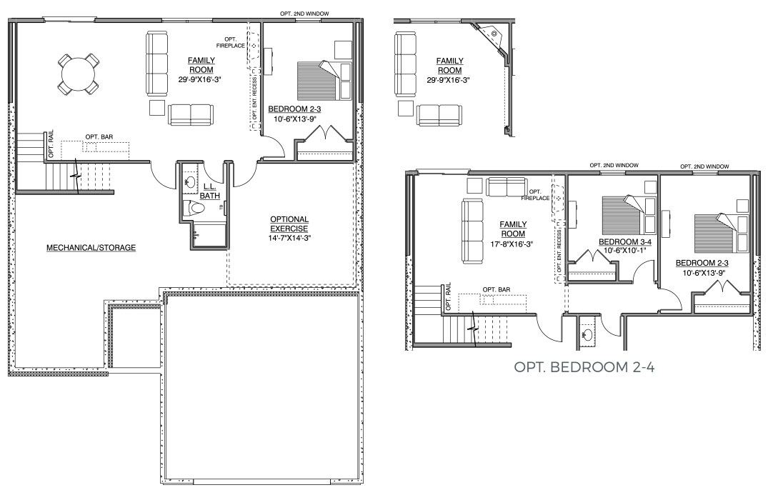
- Finished Family and Game rooms with optional wet bar, fireplace and media wall plus 2 additional Bedrooms and ¾ Bath
- Optional Exercise Room finish
Vail 2 Floorplan



Homes Designed for the Art of Living
At Hanson Builders, we build homes designed for you. In addition to fully custom and semi-custom build packages, we offer new construction, move-in ready homes to fit your needs, lifestyle, and budget. Our passion is designing and building homes where families will enjoy many years of happiness, and we carry that passion into perfecting even the smallest details. Every Hanson home is a labor of love.
VIEW AVAILABLE HOMES
Custom Homes That Inspire
We’ve been designing and building award-winning custom homes in Minnesota for more than 40 years. Whatever you envision for your new home, we have the experience and expertise to bring it to life. Browse some of our recent projects to see for yourself.








