Home Plan Details
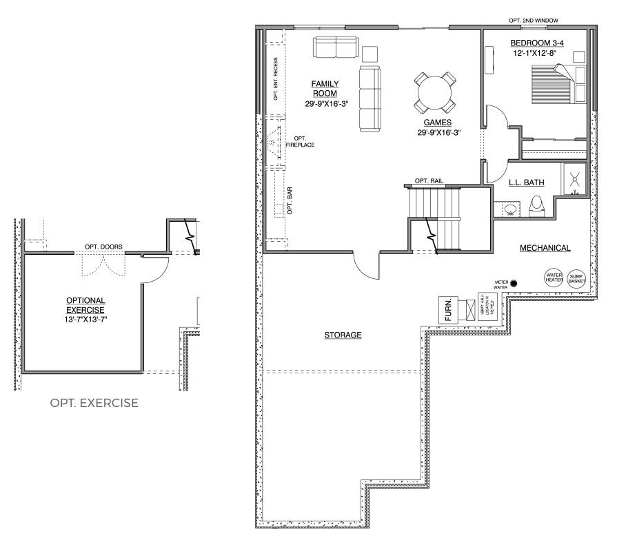
See neighborhoods for pricing detailsThe Virginia Villa by Hanson Builders offers a comfortable layout, utilizing every square foot to create a cozy and relaxing atmosphere. Vaulted ceilings and built-in shelves show off this home’s elegance, while an optional sunroom and exercise room offer extra space to relax.
Virginia Floorplan


Homes Designed for the Art of Living
At Hanson Builders, we build homes designed for you. In addition to fully custom and semi-custom build packages, we offer new construction, move-in ready homes to fit your needs, lifestyle, and budget. Our passion is designing and building homes where families will enjoy many years of happiness, and we carry that passion into perfecting even the smallest details. Every Hanson home is a labor of love.
VIEW AVAILABLE HOMES
Custom Homes That Inspire
We’ve been designing and building award-winning custom homes in Minnesota for more than 40 years. Whatever you envision for your new home, we have the experience and expertise to bring it to life. Browse some of our recent projects to see for yourself.








