Home Plan Details
See neighborhoods for pricing detailsWalton Home Plan
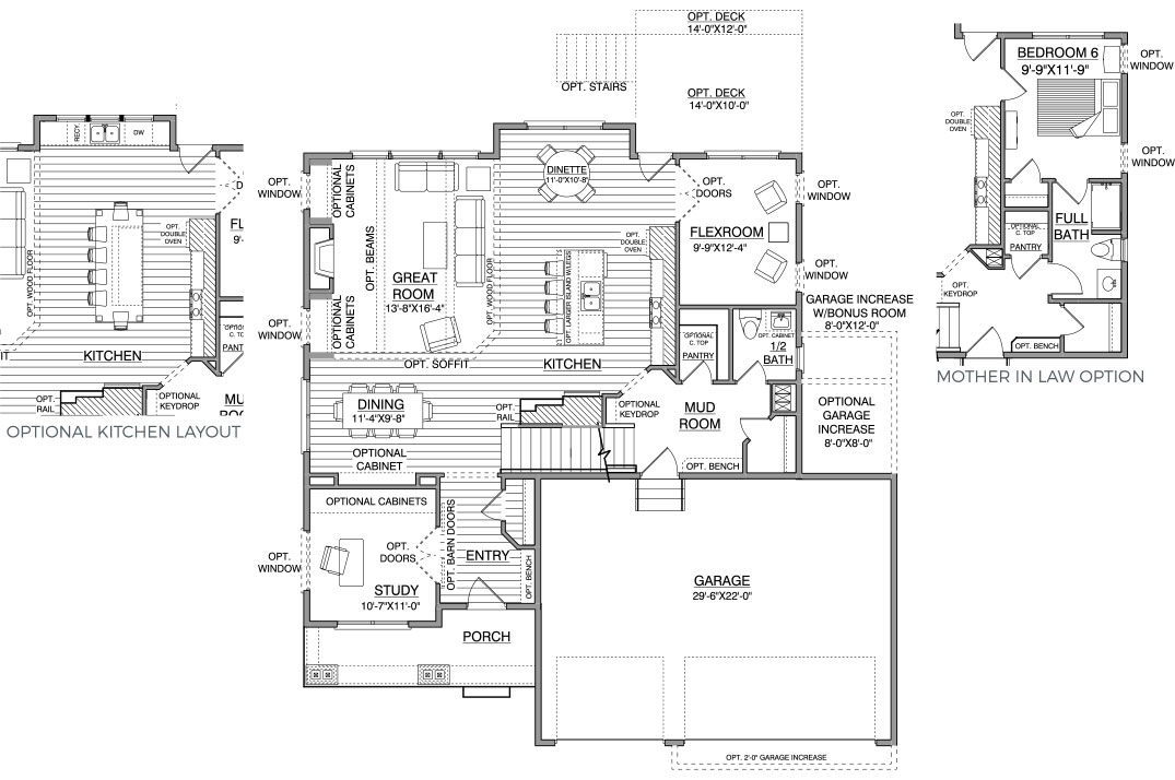
- Central kitchen overlooks Great Room with optional decorative beams, nearby Dining Room, and rear views over the kitchen sink, plus informal eating at the dropped island table.
- Working Office off front entry for receiving clients or deliveries.
- Optional rear oriented Sunroom with options for a vaulted ceiling and fireplace provides family getaway and relaxation.
- Large pantry just steps away from the kitchen for handy use and hiding the mess.
- The Flex Room can be upgraded to a 6th bedroom which includes upgrading the half bath to a 3/4 bath.
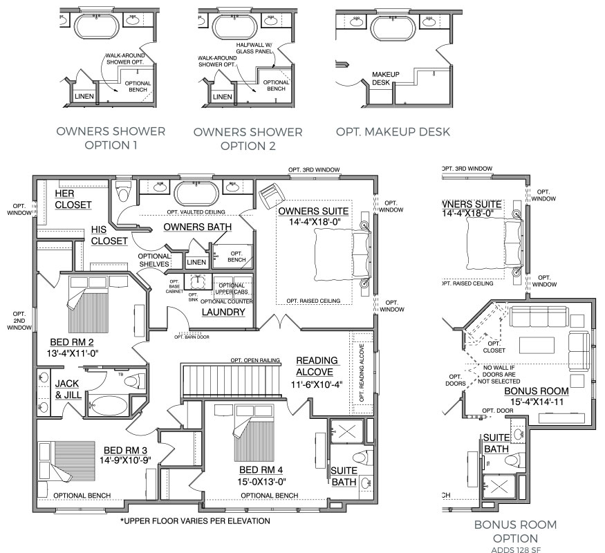
- Owners Suite offers double doors and an optional dramatic raised ceiling
- Owners Bath features optional raised ceiling, makeup desk and spa shower in addition to free-standing tub, and easy access to His and Hers closets.
- Laundry has exterior window, linen closet, and easy access from the hall or owner's closet.
- Two bedrooms share a Jack & Jill bath with private shower/toilet room and 4th bedroom has its own private bath and walk-in closet
- Optional Bonus Room has additional options for double doors, a vaulted ceiling, and access to Suite Bath for sleepovers.
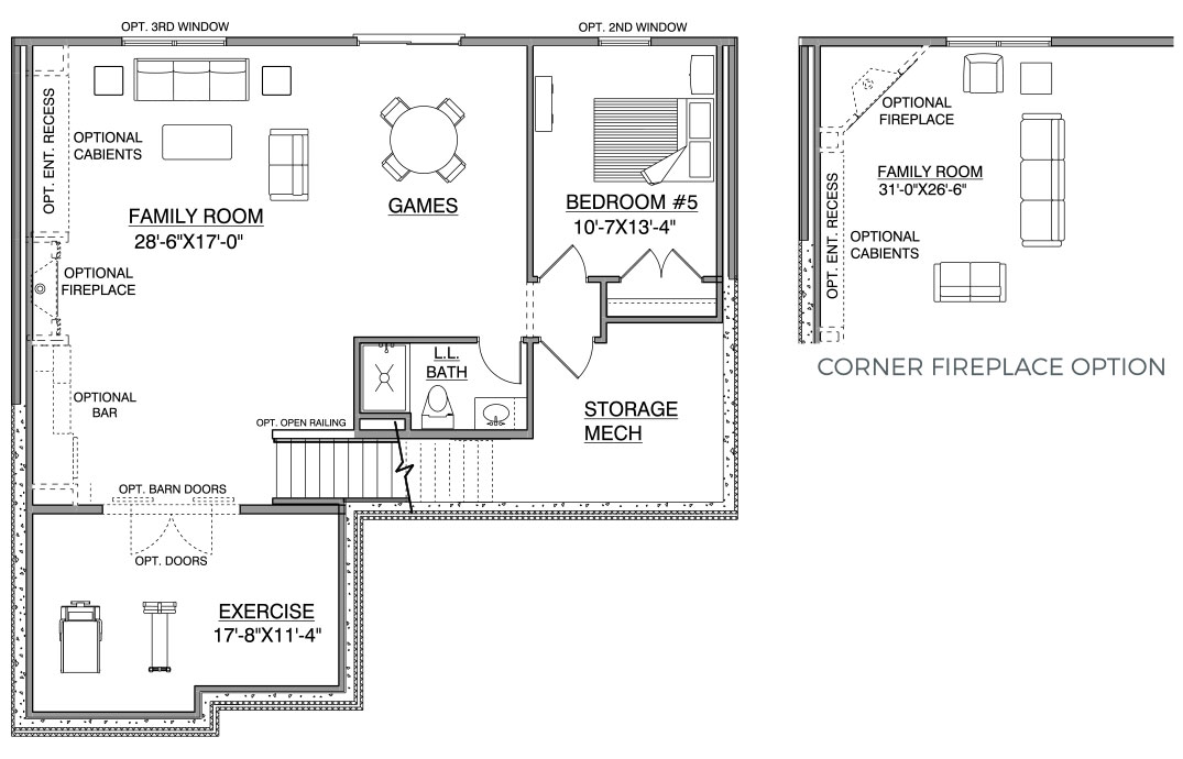
- Large Family Room offers options for a wet bar, entertainment recess, and either a corner or centered fireplace.
- Games area offers room for a games table and fun with family or guests.
- Exercise Room has optional swing or barn doors and has plenty of space for working out.
Neighborhoods with Floorplan Option
Walton Floorplan



Homes Designed for the Art of Living
At Hanson Builders, we build homes designed for you. In addition to fully custom and semi-custom build packages, we offer new construction, move-in ready homes to fit your needs, lifestyle, and budget. Our passion is designing and building homes where families will enjoy many years of happiness, and we carry that passion into perfecting even the smallest details. Every Hanson home is a labor of love.
VIEW AVAILABLE HOMES
Custom Homes That Inspire
We’ve been designing and building award-winning custom homes in Minnesota for more than 40 years. Whatever you envision for your new home, we have the experience and expertise to bring it to life. Browse some of our recent projects to see for yourself.













