Home Plan Details
See neighborhoods for pricing detailsHanson Builders’ Westley Sport features an open-concept design for modern living. The main floor offers a walk-in pantry and rear-facing bump out, and the lower level boasts a wet bar, fireplace, and two-story sport center.
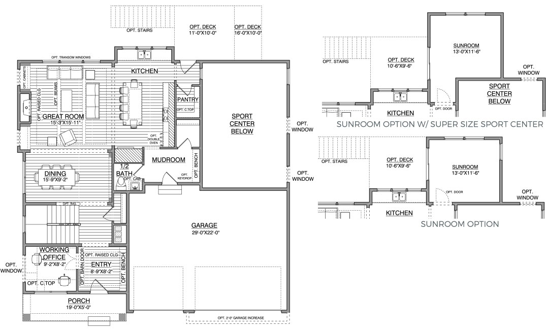
- Central kitchen overlooks Great Room with optional decorative beams, nearby Dining and the rear views through windows over the kitchen sink
- Working Office off front entry for receiving clients or deliveries
- Optional rear-oriented Sunroom for family getaway relaxation
- Large Pantry just steps away from kitchen for handy use and hiding the mess
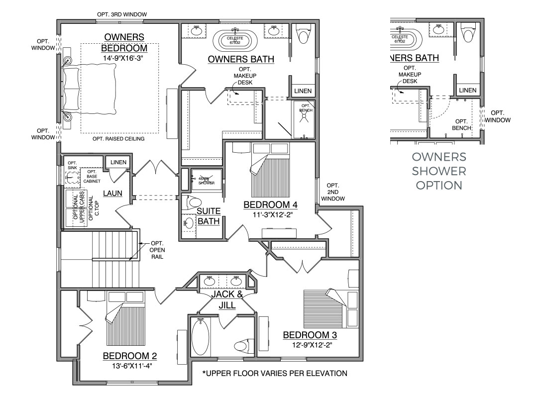
- Owners Suite offers optional dramatic raised ceiling and additional windows
- Owners Bath features optional makeup desk and spa shower in addition to free-standing tub
- Laundry has exterior window and linen closet
- Two bedrooms share a Jack & Jill bath with private shower/toilet room and 4th bedroom has its own private bath and walk-in closet
- Indoor 2-story Sport Center with nearby ball storage closet
- Family and Game rooms with wet bar, fireplace and media wall plus 5th Bedroom or additional Exercise Room and ¾ Bath
Neighborhoods with Floorplan Option
Westley Sport Floorplan



Homes Designed for the Art of Living
At Hanson Builders, we build homes designed for you. In addition to fully custom and semi-custom build packages, we offer new construction, move-in ready homes to fit your needs, lifestyle, and budget. Our passion is designing and building homes where families will enjoy many years of happiness, and we carry that passion into perfecting even the smallest details. Every Hanson home is a labor of love.
VIEW AVAILABLE HOMES
Custom Homes That Inspire
We’ve been designing and building award-winning custom homes in Minnesota for more than 40 years. Whatever you envision for your new home, we have the experience and expertise to bring it to life. Browse some of our recent projects to see for yourself.










