Home Plan Details
See neighborhoods for pricing detailsHanson Builder’s Weston Sport is designed for modern living, with space for relaxing, working, and entertaining. The kitchen overlooks the great room, while a large pantry, front office, and optional sunroom radiate out from the heart of the home.
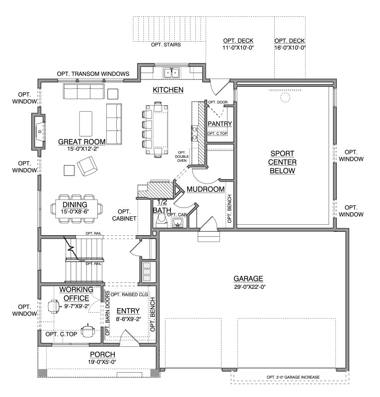
- Central kitchen overlooks Great Room, nearby Dining and the rear views through windows over the kitchen sink
- Working Office off front entry for receiving clients or deliveries
- Large Pantry just steps away from kitchen for handy use and hiding the mess
- Owners Suite offers optional dramatic raised ceiling and additional windows
- Owners Bath features optional oversized shower in addition to free-standing tub plus His and Her separate closets
- Laundry has exterior window and linen closet
- Two bedrooms and open loft/bedroom 4 share a hall Jack & Jill bath with private shower/toilet room
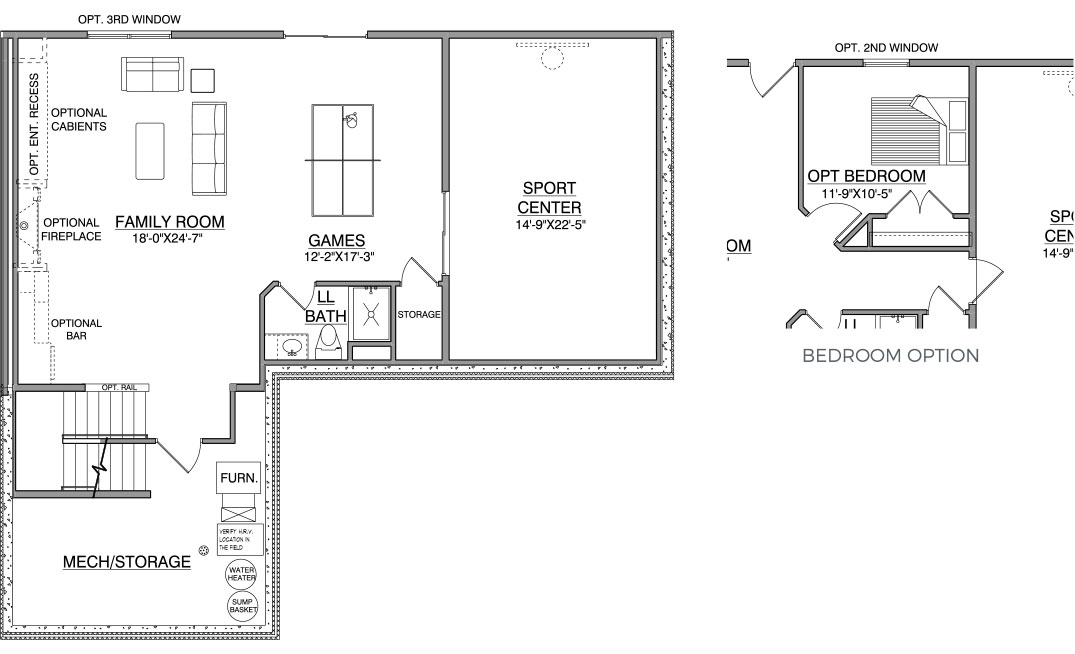
- A step-down Bonus Room can be added above the garage, or made into an optional Bedroom with private Suite Bath
- Indoor 2-story Sport Center with nearby ball storage closet
- ¾ Bath, Family and Game rooms
Neighborhoods with Floorplan Option
Weston Sport Floorplan



Homes Designed for the Art of Living
At Hanson Builders, we build homes designed for you. In addition to fully custom and semi-custom build packages, we offer new construction, move-in ready homes to fit your needs, lifestyle, and budget. Our passion is designing and building homes where families will enjoy many years of happiness, and we carry that passion into perfecting even the smallest details. Every Hanson home is a labor of love.
VIEW AVAILABLE HOMES
Custom Homes That Inspire
We’ve been designing and building award-winning custom homes in Minnesota for more than 40 years. Whatever you envision for your new home, we have the experience and expertise to bring it to life. Browse some of our recent projects to see for yourself.










