Home Plan Details
See neighborhoods for pricing detailsThe Windom by Hanson Builders is a spacious home plan designed for modern families. The open-concept main level is ideal for large gatherings, with double dining areas and an optional sunroom. Numerous bedrooms make sure everyone has the space they need.
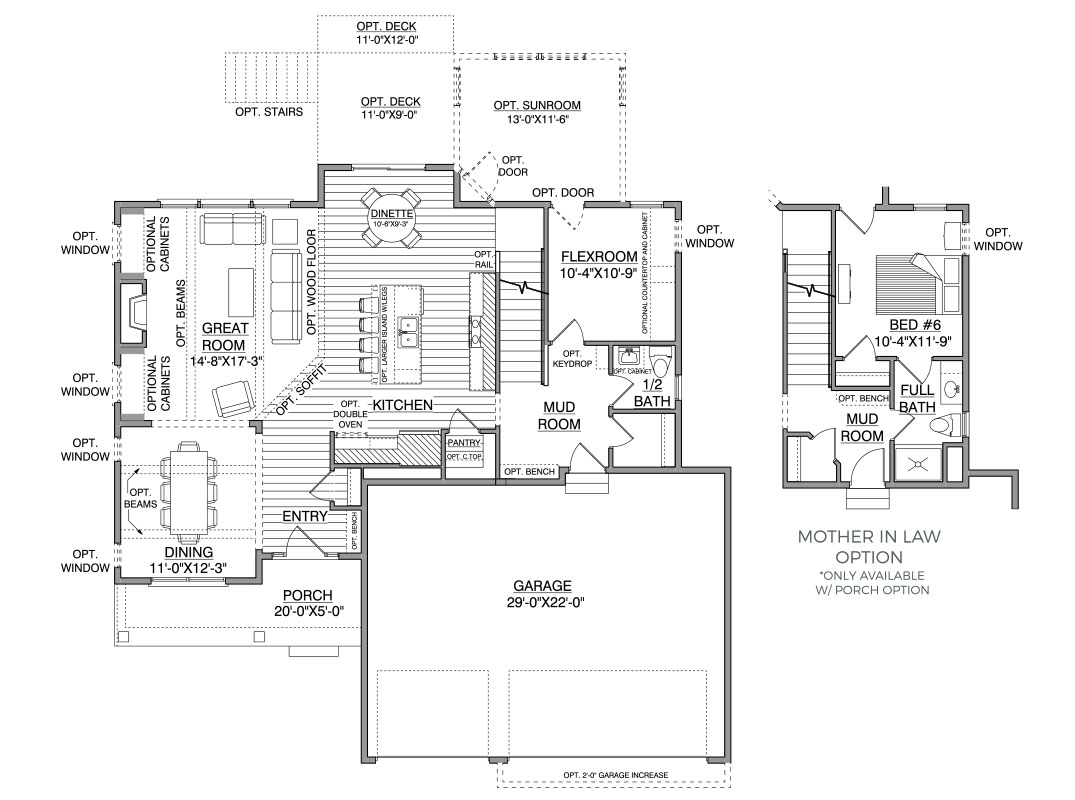
- Central kitchen overlooks Great Room with optional decorative beams and dropped soffit, front-facing Formal Dining and rear Dinette
- Corner Kitchen pantry for handy use and hiding the mess
- Optional 3-sided Sunroom offers getaway relaxation
- Rear-facing Flexroom for work or play with option for main-floor In-law Suite with private ¾ bath access
- Owners Suite offers optional dramatic raised ceiling and additional windows
- Owners Bath offers optional vaulted ceiling and walk-around shower access in addition to free-standing tub
- Owners’ closet opens to laundry for handy access and escape to hallway
- Two bedrooms share a Jack & Jill bath with private shower/toilet room
- Private Suite Bath for Bedroom 4
- Open loft with windows welcomes at the top of the stairs
- Family and Game rooms with wet bar, fireplace and media wall plus 5th Bedroom and ¾ Bath
Neighborhoods with Floorplan Option
Windom Floorplan



Homes Designed for the Art of Living
At Hanson Builders, we build homes designed for you. In addition to fully custom and semi-custom build packages, we offer new construction, move-in ready homes to fit your needs, lifestyle, and budget. Our passion is designing and building homes where families will enjoy many years of happiness, and we carry that passion into perfecting even the smallest details. Every Hanson home is a labor of love.
VIEW AVAILABLE HOMES
Custom Homes That Inspire
We’ve been designing and building award-winning custom homes in Minnesota for more than 40 years. Whatever you envision for your new home, we have the experience and expertise to bring it to life. Browse some of our recent projects to see for yourself.










