Home Plan Details
See neighborhoods for pricing detailsOur latest luxury design, the Woodland, emphasizes spacious rooms for a comfortable lifestyle. This open-concept layout is designed for modern living with careful attention to detail. An extensive garage allows for extra storage.
- Corner kitchen overlooks Great Room, nearby Dining and the rear views through windows over the kitchen sink
- Study/Home Office off front entry for receiving clients or deliveries
- Corner walk-in Pantry in Kitchen for handy use and hiding the mess
- Optional rear-facing 3-sided Sunroom off the Dining for getaway relaxation
- Owners Suite offers optional dramatic raised ceiling and additional window
- Owners Bath features optional oversized shower with half-glass option in addition to free-standing tub
- Laundry has exterior window and linen closet
- Two bedrooms and open loft/bedroom 4 share a hall Jack & Jill bath with private shower/toilet room
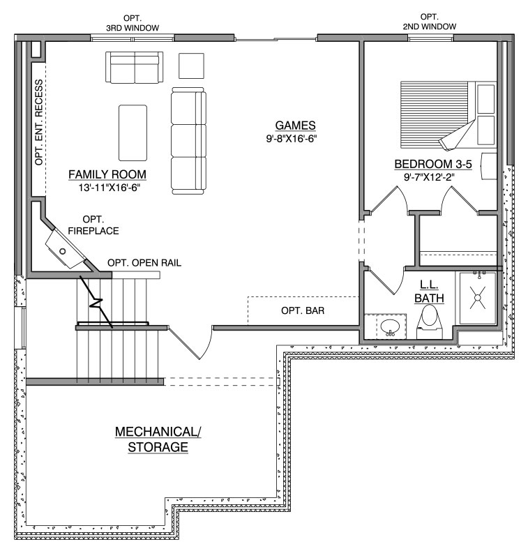
- Family and Game rooms with wet bar, fireplace and media wall plus additional Bedroom and ¾ Bath
Neighborhoods with Floorplan Option
Woodland Floorplan



Homes Designed for the Art of Living
At Hanson Builders, we build homes designed for you. In addition to fully custom and semi-custom build packages, we offer new construction, move-in ready homes to fit your needs, lifestyle, and budget. Our passion is designing and building homes where families will enjoy many years of happiness, and we carry that passion into perfecting even the smallest details. Every Hanson home is a labor of love.
VIEW AVAILABLE HOMES
Custom Homes That Inspire
We’ve been designing and building award-winning custom homes in Minnesota for more than 40 years. Whatever you envision for your new home, we have the experience and expertise to bring it to life. Browse some of our recent projects to see for yourself.






